Loading...

Kantoor Bouwbedrijf Berghege Oss

Bewaren

Het kantoor van Bouwbedrijf Berghege is sinds de jaren ’80 gevestigd in een monumentaal pand. Na 35 jaar gebruik was het gebouw verrommeld en verkeerde het in slechte staat. Berghege vroeg ons hun monument in oude glorie te herstellen, maar het toevoegen van nieuwe bouwdelen niet te schuwen. Het resultaat is een unieke, hoogwaardige werkomgeving. Na deze grootschalige renovatie wordt het pand zó gewaardeerd dat het in 2021 is genomineerd voor de prestigieuze architectuurprijs BNA Beste gebouw van het Jaar! Ook is het door de lezers van het Brabants Dagblad met een ruime overwinning uitgeroepen als ‘mooiste herbestemde gebouw in Oss’.

Een bouwbedrijf in een klooster

Bouwbedrijf Berghege is gevestigd in een monumentaal kantoorpand aan de Begijnenstraat in Oss. Het oorspronkelijke St. Nicolaasinstituut is aan het eind van de 19e eeuw gebouwd als Fraterhuis. Deze ongebruikelijke huisvesting voor een aannemer is het resultaat van de verregaande historische banden tussen het instituut en het bouwbedrijf. Zowel de huidige directeur Henk Berghege als zijn vader en diens voorganger Jan hebben zelf katholiek onderwijs genoten op het instituut. Daarnaast was Bouwbedrijf Berghege eerder al in dezelfde straat gevestigd. Zij waren dan ook verantwoordelijk voor de grote uitbreiding van het St. Nicolaasinstituut in de jaren 1950. Ze bouwden toen onder andere een nieuwe kapel in het hart van het complex.

Eind jaren 1980 is het pand aangepast tot kantoor en in gebruik genomen door het bouwbedrijf. Vijfendertig jaar later is de organisatie flink gegroeid en voldeed het pand niet meer aan de huidige duurzaamheids- en comforteisen. Ook begon het monument tekenen van verval te vertonen. Berghege heeft uit liefde voor het pand besloten om het monument grondig te renoveren en nieuw leven in te blazen. De Twee Snoeken heeft hiervoor het ontwerp gemaakt.

We hebben daarom met onze interventies geprobeerd om een logische volgende stap te zetten in de ontwikkeling van het complex, door alle delen die nieuw werden aangebouwd op een herkenbare, eigentijdse manier vorm te geven. De nieuwe kloostergang aan de patio en de glazen uitbreidingen aan de achtergevel en de linker zijgevel, zijn daarom allemaal op een eenduidige manier opgetrokken uit ranke, brons geanodiseerde aluminium vliesgevels. De eenheid tussen de drie bouwstijlen is daarbij gezocht in de vormgeving, de ritmes en de zorgvuldige detaillering. De twee gesloten nieuwe bouwdelen die we aan de achterkant van het monument hebben toegevoegd zijn uitgevoerd met nieuwe bakstenen die in vorm en kleur nagenoeg gelijk zijn aan de stenen uit de tweede bouwperiode in de jaren ’50. Hierdoor vormen deze nieuwe bouwdelen samen met de bestaande kapel, de klokkentoren en het trappenhuis in de achtergevel van het gebouw een fraaie en rustige compositie van geometrische blokken in dezelfde kleur en textuur. Door het metselwerk van de nieuwe bouwdelen echter uit te voeren in een tegelverband wordt in tweede instantie het verschil duidelijk tussen de historische en de nieuwe bouwdelen. Zo hebben we samen met Berghege en haar onderaannemers consciëntieus gewerkt aan een verfijnde vormgeving van de nieuwe gevels.

Het grote monumentale trappenhuis bij de personeelsentree was voor de renovatie zeer donker en somber. Het daglicht dat vanaf boven de ruimte invalt en de frisse en lichte kleuren die zijn toegepast, aangevuld met enkele contrasten van bijvoorbeeld de spijlen in het hekwerk, geven deze weldadige ruimte opnieuw haar vroegere elan terug. Ook de originele lift is gerestaureerd en doet weer dienst.

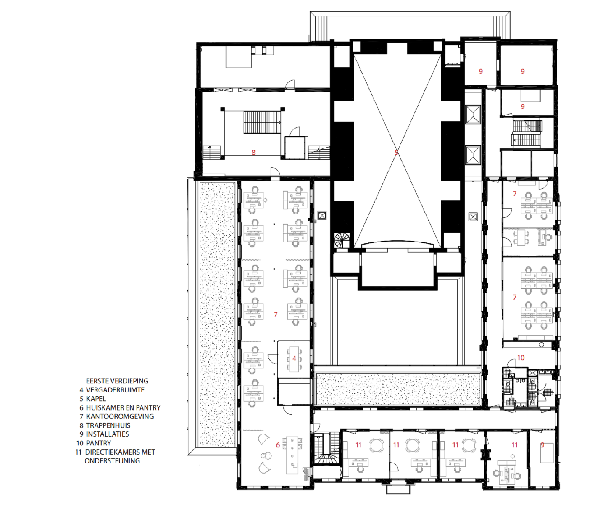
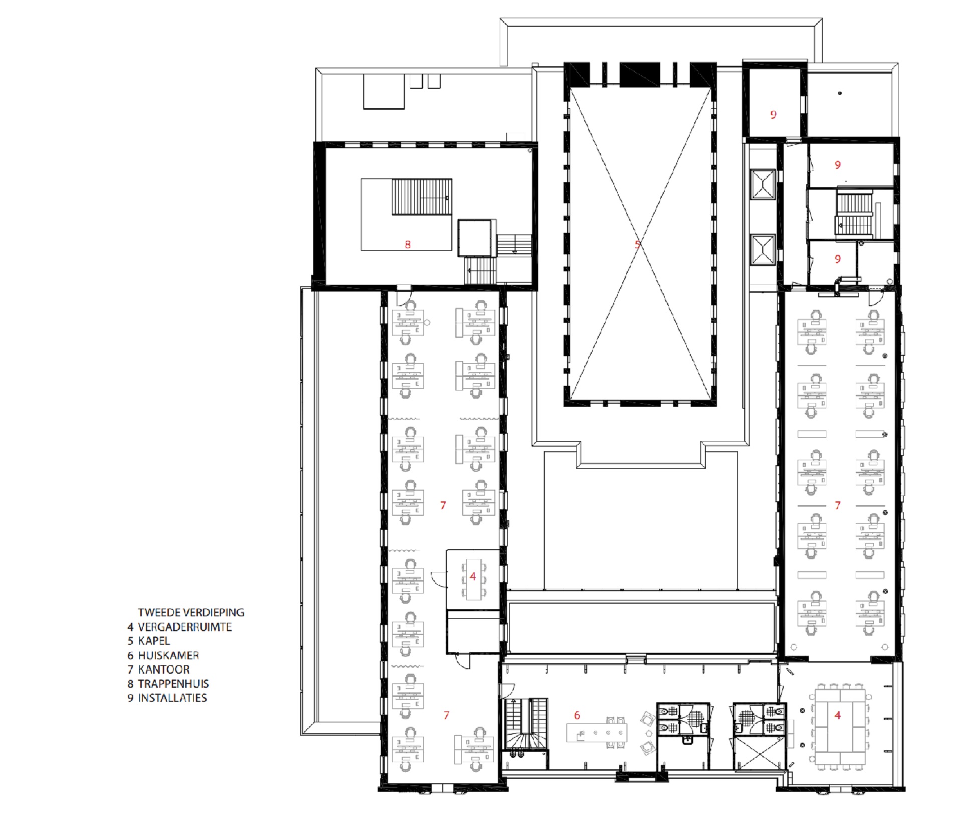
De verschillende werkverdiepingen bevatten eenzelfde frisse en ingetogen sfeer. De meer dynamische plekken, zoals de overlegruimtes, hebben we geaccentueerd met meer kleur. Op de tweede verdieping bevindt zich een zeer bijzondere werkomgeving. Hier is het plafond van de vroegere kapel uit de eerste bouwperiode namelijk zichtbaar: een in bonte kleuren houtafwerking met gouden details en siersnijwerk. Deze prachtige ornamentering vonden wij verstopt onder een systeemplafond. Ook hier zijn werkplekken gesitueerd. Deze werkplekken zijn opgezet in een kleine schaal, om de ruimte akoestisch aangenaam te houden. De sfeerverlichtingsarmaturen die wij hebben toegevoegd dragen bij aan een verdere verbetering van de akoestiek. Het daglicht komt hier laag binnen, waardoor we ervoor kozen om extra daglicht simulatie lampen aan de werkplekken toe te voegen. Ook hier is gekozen voor rijke materialen zoals eikenhout. Door gekleurd MDF met subtiele details zoals een lichte bronskleurige rand, brengen we een verdere verfijning aan in deze ruimte.

Overal in het gebouw zijn oorspronkelijke details zorgvuldig hersteld, op sommige plekken opnieuw zichtbaar gemaakt en vervolgens gecombineerd met eigentijdse interieurelementen en moderne voorzieningen. Een wandeling door het gebouw wordt op deze manier een tijdreis door de gelaagdheid van de rijke geschiedenis van dit prachtige pand.

Herkenbaarheid en continuïteit

Aan het monument zijn duidelijk de twee belangrijkste bouwfasen van het complex af te lezen. Het neogotische zuidelijke deel aan de Begijnenstraat en aan de noordzijde het - in de jaren 1950 door J.A. De Reus ontworpen - deel in Bossche Schoolstijl. De verschillen tussen deze bouwstijlen vallen direct in het oog. Zowel de gevelcomposities als het materiaalgebruik zijn afwijkend. Het deel aan de noordkant is in een grove, gelige dikformaat steen opgetrokken, terwijl het oorspronkelijke monument in zijn geheel is gekeimd in een lichtgrijze kleur.

Toen we aan de slag gingen met het gebouw was het in een slechte staat, met name het monumentale deel van het gebouw uit de 19e eeuw was er slecht aan toe. Niet alleen bouwkundig, in de vorm van lekkages, afgebladderd schilderwerk op het metselwerk en houten deuren die niet goed meer sloten. Ook waren er in de jaren ’80 pragmatische aanpassingen en uitbreidingen aan het gebouw gedaan die de monumentaliteit en de afleesbaarheid van de historische ontwikkeling van het pand schaden. Berghege stelde ons de vraag om het monument grondig te renoveren en in oude glorie te herstellen, maar daarbij ook het toevoegen van nieuwe bouwdelen niet te schuwen. Het gebouw wordt in deze tijd weer gerevitaliseerd en gebruikt, waarna ook deze derde belangrijke bouwperiode onderdeel mag gaan uitmaken van de historische gelaagdheid van het gebouw.

Hetzelfde geldt voor de restauratie en renovatie van de bestaande bouwdelen. Zo is het volledige dak van de 19e-eeuwse vleugels bekleed met nieuwe leien en zijn er nieuwe dakkapellen en ornamenten aangebracht, gereconstrueerd op basis van oude foto’s uit bouwhistorisch onderzoek van BAAC. Tevens is de raamverdeling en detaillering van de originele gevelkozijnen, die in de jaren 1980 zijn vervangen door aluminium en stalen ramen, weer teruggebracht in nieuwe houten kozijnen en ramen. Omdat het later aangebrachte schilderwerk op het metselwerk van het oude monument helaas niet verwijderd kon worden zonder de stenen te veel te beschadigen is het opnieuw geschilderd. Daar waar de oorspronkelijke rijke detaillering - van met name de voorgevel - in zijn geheel in de jaren 1980 achter een monotone verflaag was verdwenen, hebben we er nu bewust voor gekozen om deze rijkheid juist weer te laten zien met drie verschillende kleuren.

Een historisch religieus ensemble

Het fraterhuis vormt samen met de kerk en de pastorie een religieus ensemble in het centrum van Oss. Deze ensemblewerking is onder andere in de vorm van tuinmuren, hekwerken en beplanting zoveel mogelijk versterkt. Het gebied is ook publiek toegankelijk gemaakt, waardoor wandelaars en fietsers nu de mogelijkheid hebben om de gebouwen van het historische ensemble aan alle zijden te aanschouwen op hun route vanuit het centrum naar het nieuwe park.

Wandelen door de historie

De historische gelaagdheid die door de verschillende bouwperiodes van het monument is ontstaan, vormt ook voor het interieur de belangrijkste inspiratiebron. In de loop der tijd was het pand verrommeld en was de kracht en herkenbaarheid van die diverse lagen verdwenen. Wij hebben deze gelaagdheid weer opnieuw afleesbaar gemaakt in het interieur door waar nodig de historische elementen te herstellen en een nieuwe eigentijdse laag toe te voegen. Het pallet van materialen en kleuren is ingetogen met enkele accenten. Juist door ingetogen om te gaan met kleuren laat het de aanwezige details en diversiteit zien. De contrasten worden gezocht in accenten.

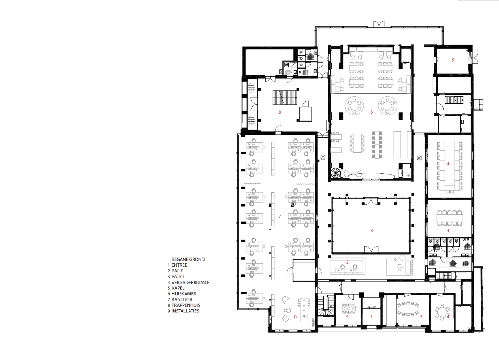
Bij binnenkomst door de hoofdentree wordt de bezoeker aangetrokken door het licht, met zicht op de patio en daaromheen een prachtige rondgang (de voormalige kloostergang). Op deze plek komen de drie bouwperioden op een prachtige manier samen. De bestaande deuren, die uit de vroegste periode stammen, zijn gemaakt van antraciet. De tinten en materialen die in deze ruimte zijn gebruikt hebben een rijke uitstraling. De ruimte heeft een warme sfeer, onder meer door de natuurstenen vloer, de bronskleurige pui en het gebruik van aardse kleuren. De balie is op een eigentijdse manier vormgegeven en uitgevoerd in een bronskleurig materiaal.

De centraal gelegen kapel uit de tweede bouwperiode fungeert als ontmoetingsruimte. Een multifunctionele plek waar het personeel luncht en bezoekers worden ontvangen, maar waar ook scrumsessies en bouwvergaderingen worden gehouden. In de hoge ruimte worden de prachtige gewelfvormen door middel van lichtinval geaccentueerd. De demontabele akoestische wandafwerking in lichte kleur zorgt voor een serene sfeer en een aangename ruimteakoestiek.

Een nieuw Bertrand Russel college